Bm36021 |
尼崎市長洲東通3丁目 グリーンプラザ尼崎 |
2,780万円 |
− 12分 |
67.5m2 |
3LDK 鉄骨鉄筋コンクリート造 |
H04/02 即時 |

|
|
★阪神杭瀬駅より徒歩約12分・JR尼崎駅より徒歩約16分の2WAYアクセス可能! ★2025年9月リフォーム完了【システムキッチン・洗面台・トイレ・浴室新調 クロス張替え ハウスクリーニング】! ★ペット飼育可(規約による制限有)! ★駐車場有! ★周辺施設【長洲公園・・・約140m 合志病院・・・約760m 長洲小学校・・・約250m 小田中学校・・・約760m】! ★長洲小学校・小田中学校校区のマンション! |
Bm35890
|
尼崎市東難波町4丁目 サンヴェールパルシティ |
2,790万円 |
− 12分 |
64.34m2 |
3LDK 鉄筋コンクリート造 |
S62/03 即時 |
|

|
★阪神尼崎駅より徒歩約12分! ★ペット飼育可(規約による制限有)! ★空室につき即入居可! ★周辺施設【県立尼崎総合医療センター・・・約500m スーパー万代難波店・・・約260m ミニストップ・・・約310m 東難波郵便局・・・約760m 難波小学校・・・約500m 中央中学校・・・約1180m】! ★難波小学校・中央中学校校区のマンション!、 |
Bm34990 |
尼崎市潮江1丁目 アミング潮江イーストA壱棟 |
2,880万円 |
− 5分 |
68.27m2 |
2LDK 鉄骨鉄筋コンクリート造 |
H06/03 相談 |

|
|
★JR尼崎駅まで徒歩6分! ★3階部分につき眺望良好! ★システムキッチン! ★オートロック! ★TVモニター付インターホン! ★温水洗浄便座! ★2面バルコニー! ★周辺施設【あまがさきキューズモール・・・徒歩約2分 スーパーマルハチ・・・徒歩約4分 尼崎中央病院・・・徒歩約2分 潮江公園・・・徒歩約8分 阪急オアシス・・・徒歩約2分 潮小学校・・・徒歩約7分】! ★潮江小学校・大成中学校校区の中古マンション! |
Bm35863
|
尼崎市杭瀬本町2丁目 アークフォルム杭瀬公園 |
2,890万円 |
− 7分 |
64.14m2 |
3LDK 鉄骨鉄筋コンクリート造 |
H14/05 相談 |
|

|
★阪神杭瀬駅より徒歩6分! ★北東角部屋! ★2025年8月リフォーム完了予定【システムキッチン・洗面台・トイレ・浴室新調 クリーニング等 フローリング張替え等 建具新調 ハウスクリーニング等】! ★バルコニー2カ所有! ★ペット飼育可(規約による制限有)! ★周辺施設【スーパーサンエー・・・徒歩約1分 大隈病院・・・徒歩約1分 杭瀬市場・・・徒歩約2分】! ★杭瀬小学校・小田中学校校区のマンション! |
Bm35782
|
尼崎市南塚口町7丁目 南塚口ガーデンハウス |
3,149万円 |
− 14分 |
61.98m2 |
3LDK 鉄筋コンクリート造 |
H08/01 相談 |
|

|
★阪急塚口駅より徒歩約14分! ★3階部分の角住戸:日当たり良好! ★ペット飼育可(規約による制限有)! ★2025年6月リフォーム完了【システムキッチン・洗面台・トイレ・浴室新調 クロス張替え フローリング張替え 建具交換 畳表替え ハウスクリーニング等】! ★周辺施設【ソコラ・・・徒歩約15分 セブンイレブン・・・徒歩約1分 スギ薬局・・・徒歩約1分 つかぐち病院・・・徒歩約7分 栗山公園・・・徒歩約3分】! ★立花小学校・立花中学校校区のマンション! |
Bm36102
|
尼崎市西難波町5丁目 エンゼルクレッセ西難波 |
3,190万円 |
− 13分 |
65.94m2 |
3LDK 鉄筋コンクリート造 |
H13/03 即時 |
|

|
★阪神出屋敷駅より徒歩13分・阪神尼崎駅より徒歩約16分の2WAYクセス可能! ★、2025年12月リフォーム完了予定【システムキッチン・洗面台・トイレ・浴室新調 クロス張替 フローリング張替え 建具新調 配管更新 ハウスクリーニング等】! ★ペット飼育可(規約による制限有)! ★専用庭:5.2u有(使用料月額:160円)! ★周辺施設【尼崎市役所・・・約1100m スーパー玉出尼崎店・・・約550m マンダイ尼崎難波店・・・約850m】! ★オートロック・宅配ボックス! ★難波小学校・中央中学校校区のマンション! |
Bm35357 |
尼崎市西大物町 リビオ尼崎STATION CITY |
3,350万円 |
− 6分 |
56.69m2 |
1LDK 鉄筋コンクリート造 |
R02/01 相談 |
|
|
★阪神尼崎駅より徒歩約6分! ★令和2年1月建築のマンション! ★7階部分に付き陽当り・眺望良好! ★ペット飼育可(規約による制限有)! ★ウォークインクローゼット有! ★周辺施設【イズミヤ尼崎店・・・徒歩約7分 マックスバリュエクスプレイス大物店・・・徒歩約9分 アマスタアマセン・・・徒歩約7分 ファミリーマート阪神尼崎駅北店・・・徒歩約4分】! ★浴室暖房乾燥機! ★TVモニター付インターホン! ★温水洗浄便座! ★シューズボックス有! ★オートロック・宅配ボックス! ★! ★インターネット使用料:月額1760円! ★明城小学校・成良中学校校区のマンション! |
Bm35314 |
尼崎市立花町1丁目 ワコーレシティ立花 |
3,380万円 |
− 3分 |
43.05m2 |
1LDK 鉄筋コンクリート造 |
R05/11 相談 |
|
|
★JR立花駅より徒歩約3分! ★築後未入居! ★ペット飼育可(規約による制限有)! ★オートロック・宅配ボックス! ★ペット足洗い場有! 浴室暖房乾燥機! ★システムキッチン! ★ウォークインクローゼット有! ★TVモニター付インターホン! ★温水洗浄便座! ★自治会費:150円/月! ★水堂小学校・南武庫之荘中学校校区のマンション! |
Bm35972
|
尼崎市御園町 サンヴェール尼崎駅前 |
3,480万円 |
− 2分 |
73.31m2 |
3LDK 鉄筋コンクリート造 |
H11/06 相談 |
|

|
★阪神尼崎駅より徒歩2分! ★南西角部屋につき日当たり良好! ★10階部分につき眺望良好! ★2025年9月フルリフォーム完了予定! ★ペット飼育可(規約による制限有)! ★宅配ボックス・オートロック、! ★Vモニター付インターホン! ★南バルコニー・日当たり良! ★対面キッチン! ★契約不適合責任免責! ★明城小学校・成良中学校校区のマンション! |
Bm35139
|
尼崎市南武庫之荘1丁目 フォルザ武庫之荘 |
3,498万円 |
− 3分 |
60.59m2 |
3LDK 鉄筋コンクリート造 |
H11/08 相談 |
|

|
★阪急武庫之荘駅より徒歩3分! ★2025年1月リフォーム完了【システムキッチン・洗面台・トイレ・浴室新調 クロス張替 フローリング張替え 畳表替え 給湯器交換 ハウスクリーニング】! ★専有面積:60.59uの3LDKの間取り! ★5階部分に付き陽当り・眺望良好! ★周辺施設【阪急オアシス武庫之荘店・・・約30m フレスコ武庫之荘店・・・約740m セブンイレブン阪急武庫之荘駅南店・・・約300m 尼崎武庫之荘郵便局・・・約700m 立花西小学校・・・約1000m 南武庫之荘中学校・・・約650m】! ★南バルコニー・日当たり良好! ★立花西小学校・南武庫之荘中学校校区のマンション! |
Bm35558
 |
尼崎市南武庫之荘1丁目 ライオンズマンション武庫之荘第2 |
4,080万円 |
− 5分 |
70.11m2 |
2SLDK 鉄筋コンクリート造 |
H12/02 相談 |
|

|
★阪急武庫之荘駅から徒歩5分! ★2025年6月リフォーム完了予定【システムキッチン・洗面台・トイレ・浴室新調 フローリング張替え クロス張替え CF張替え 分電盤新調 下駄箱交換 和室→洋室に変更等】! ★オートロック・宅配ボックス! ★アウトフレーム設計! ★床暖房! ★二重天井・二重床! ★周辺施設【阪急オアシスシオ武庫之荘店・・・約190m スギ薬局武庫之荘店・・・約220m セブンイレブン阪急武庫之荘駅南店・・・約350m 武庫之荘郵便局・・・約720m ダイソー武庫之荘店・・・約330m】! ★駐車場有! ★立花西小学校・南武庫之荘中学校校区のマンション!! |
Bm36122 |
尼崎市大庄西町4丁目 ジオ武庫川 |
4,150万円 |
− 8分 |
68.4m2 |
2SLDK 鉄筋コンクリート造 |
R02/11 相談 |
|
|
★阪神武庫川駅より徒歩約8分・阪神尼崎センタープール前駅より徒歩約8分の2WAYアクセス可! ★ペット飼育可(規約による制限有)! ★システムキッチン! ★食器洗乾燥機! ★浴室暖房乾燥機! ★! ★全居室フローリング! ★南バルコニー・日当たり良好! ★TVモニター付インターホン! ★オートロック・宅配ボックス! ★ペット足洗い場有! ★周辺施設【コスモス尼崎大庄店・・・約20m グルメシティ大庄店・・・約300m スーパーマルハチ大庄店・・・約1000m ららぽーと甲子園・・自転車で12分 阪急西宮ガーデンズ・・・・自転車で12分】! ★インターネット使用料:月額1265円! ★契約不適合責任免責! ★大庄小学校・大庄中学校校区のマンション! |
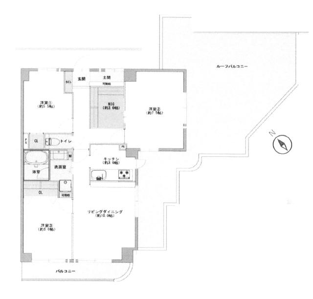
Bm35747
|
尼崎市長洲東通3丁目 グリーンプラザ尼崎 |
4,280万円 |
− 12分 |
93.86m2 |
3LDK 鉄骨鉄筋コンクリート造 |
H04/02 即時 |
|

|
★阪神杭瀬駅より徒歩約12分・JR尼崎駅より徒歩約16分の2WAYアクセス可能! ★ペット飼育可(規約による制限有)! ★2025年6月リフォーム完了【システムキッチン・洗面台・トイレ・浴室新調 クロス張替え フローリング張替え 建具新調 ハウスクリーニング】! ★角部屋につき日当たり良好! ★駐車場有! ★システムキッチン! ★TVモニター付インターホン! ★カウンターキッチン! ★2面バルコニー! ★引き回しバルコニー! ★周辺施設【長洲公園・・・約140m 合志病院・・・約760m 長洲小学校・・・約250m 小田中学校・・・約760m】! ★長洲小学校・小田中学校校区のマンション! |
Bm36033
|
尼崎市七松町1丁目 フェスタ立花南館イースト |
4,280万円 |
− 2分 |
73.72m2 |
2SLDK 鉄骨鉄筋コンクリート造 |
H12/05 令和08年02月上旬 |
|

|
★JR立花駅から徒歩2分! ★15階部分につき眺望・通風良好! ★南向きにつき日当たり良好! ★専有面積:73.72uタイプ! ★LDK約17帖有! ★システムキッチン! ★オートロック! ★周辺施設【関西スーパーフェスタ立花店・・・約50m ローソン立花南駅店・・・約100m 七松小学校・・・約600m】! ★七松小学校・日新中学校校区のマンション! |
Bm35736 |
尼崎市潮江1丁目 ライオンズマンション尼崎 |
4,480万円 |
− 5分 |
83.19m2 |
2LDK 鉄骨鉄筋コンクリート造 |
H04/02 相談 |

|
|
★JR尼崎駅から徒歩約5分! ★9階部分につき陽当たり・通風・眺望良好! ★角部屋! ★各居室収納有! ★宅配ボックス・オートロック! ★対面式キッチ! ★組合助産金:月額1000円! ★周辺施設【あまがさきキューズモール・・・徒歩約5分 阪急オアシス・・・・・・徒歩約4分 マルハチ尼崎駅前店・・・徒歩約4分】、駐車場有! ★潮小学校・大成中学校校区のマンション! |
Bm36042 |
尼崎市南塚口町6丁目 ザ・パークハウス塚口 |
4,480万円 |
− 9分 |
68.53m2 |
2LDK 鉄筋コンクリート造 |
R01/02 相談 |
|
|
★阪急塚口駅より徒歩約9分・JR塚口駅より徒歩約15分の2WAYアクセス可能! ★令和1年2月建築のマンション! ★ペット飼育可(規約による制限有)! ★オール電化マンション! ★室内丁寧にお使いです! ★ディスポーザー有・浴室暖房乾燥機! ★周辺施設【ダイエー塚口店・・・600m ウエルシア尼崎南塚口店・・・約470m つかぐち病院・・・約80m】! ★引き渡し猶予要! ★立花小学校・立花中学校校区の中古マンション |
Bm36182
|
尼崎市東塚口町1丁目 塚口アクシード |
4,680万円 |
− 2分 |
75.61m2 |
3LDK 鉄筋コンクリート造 |
H14/02 相談 |
|

|
★JR塚口駅より徒歩2分・阪急塚口駅より徒歩8分の2WAYアクセス可能! ★駐車場空有! ★最上階・角部屋につき日当たり・眺望良好! ★ウォークインクローゼット有! ★トランクルーム有り! ★ペット飼育可(規約による制限有)! ★オートロック・宅配ボックス! ★スロップシンク有! ★TVモニター付インターホン! ★シャンプードレッサー! ★24時間換気システム! ★周辺施設【万代塚口店・・・ 歩約5分 上坂部西公園・・・徒歩約6分 ヒロコーヒーつかしん店・・・徒歩約15分 上坂部小学校・・・徒歩約4分 小園中学校・・・徒歩約25分】! ★上坂部小学校・小園中学校校区のマンション! |
Bm35756
|
尼崎市立花町1丁目 ローレルコート立花町 |
4,780万円 |
− 7分 |
86.91m2 |
4LDK 鉄筋コンクリート造 |
H19/03 相談 |
|

|
★JR立花駅より徒歩7分! ★専用駐車場月! ★令和7年8月リフォーム【全クロス張替え フローリング張替え 間取り変更 建具交換 トイレ交換 ハウスクリーニング】! ★2019年リフォー歴有【洗面台 ユニットバス キッチン】! ★86.91uの4LDKの間取り! ★ペット飼育可(規約による制限有)! ★バルコニー2カ所有! ★周辺施設【阪急オアシス立花店・・・約380m 関西スーパーフェスタ立花店・・・約630m 6崎市役所・・・約370m 若松公園・・・約290m 立花南小学校・・・約440m 立花中学校・・・約1300m】! ★専用庭利用料:月額400円! ★セキュリティ利用料:月額990円! ★立花西小学校・立花中学校校区のマンション! |
Bk35604
|
尼崎市上ノ島町1丁目 |
5,599万円 |
− 11分 |
93.1m2 105.5m2 |
3SLDK 木造 |
R07/09
 相談 |
|
 
|
★阪急武庫之荘駅より徒歩約11分! ★LDKは約21.05帖有! ★駐車場有! ★トイレ2ヶ所! ★床暖房! ★システムキッチン! ★TVモニター付インターホン! ★食器洗乾燥機! ★浴室暖房乾燥機! ★温水洗浄便座! ★シャンプードレッサー! ★浄水器! ★ウォークインクローゼット有! ★24時間換気システム! ★フラット35S利用可! ★立花北小学校・立花中学校校区の新築戸建! |
Bm35707
|
尼崎市上坂部1丁目 イニシア塚口 サウスフィールド(ブライトコート) |
5,680万円 |
− 5分 |
70.5m2 |
3LDK 鉄筋コンクリート造 |
H20/07 相談 |
|

|
★JR塚口駅より徒歩5分・阪急塚口駅より徒歩約16分の2WAYアクセス可能! ★2025年5月リフォーム【システムキッチン・洗面台・トイレ・浴室新調 建具新調 クロス張替え フローリング張替え ハウスクリーニング】! ★平成20年7月建築! ★南バルコニー・日当たり良好! ★ペット飼育可(規約による制限有)! ★宅配ボックス! ★周辺施設【VIERRA塚口・・・約400m 万代塚口店・・・約250m コープ尼崎近松店・・・約550m 近松公園・・・約700m】! ★充実した共用設備【キッズルーム・リラクゼーションルーム・バーベキューコーナー・グルーミングルーム集会所・洗車場・来客用駐車場】! ★自治会費:月額100円! ★周辺施設【VIERRA塚口・・・約400m 万代塚口店・・・約250m コープ尼崎近松店・・・約550m 近松公園・・・約700m】! ★スロップシンク有! ★園田南小学校・小園中学校校区のマンション! |