|
||||||
| 種目 | 所在地 マンション名 |
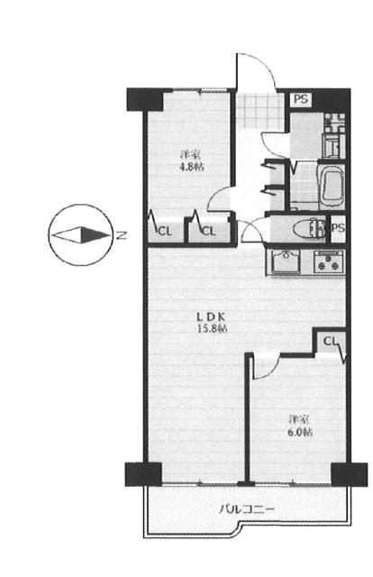
専有面積 | 間取 構造 |
築年月 引渡時期 |
駐車場 駐車場料金 |
|
|---|---|---|---|---|---|---|
| 中古マンション | 尼崎市東塚口町1丁目 サンマンション塚口第一 |
57.51m2 ( 17.39坪 ) | 2LDK 鉄骨鉄筋コンクリート造 |
S53/07 相談 |
空有 8,000円 |
|
★JR塚口駅より徒歩約3分・阪急塚口駅徒歩約10分の2WAYアクセス可能!
★クロス張替・ハウスクリーニング済!
★周辺施設【万代塚口店・・・約430m ファミリーマート南塚口町店・・・約110m セブンイレブンJR塚口駅前店・・・約180m 尼崎南塚口郵便局・・・約180m 塚口さんさんタウン・・・約600m つかしん・・・約1130m 上坂部小学校・・・約50m】!
★浴室暖房乾燥機!
★駐車場有!
★シャンプードレッサー!
★上坂部小学校・小園中学校校区のマンション!
| 物件番号 | Bm36101 | |||||||||||||||||
|---|---|---|---|---|---|---|---|---|---|---|---|---|---|---|---|---|---|---|
| 交通 | 塚口 徒歩3分 車9分 塚口 徒歩10分 |
学区 | 小学校区:上坂部 中学校区:小園 |
|||||||||||||||
| 総戸数 | 75戸 | 階/階建 | 4階/地上7階建 | |||||||||||||||
| 取引態様 | 仲介 | 用途地域 | 第一種中高層住居専用地域 | |||||||||||||||
| 管理形態 | 全部 | バルコニ方向 | 東 | |||||||||||||||
| 修繕費 | 14,168円 | |||||||||||||||||
| 特色 | JR塚口駅より徒歩約3分・阪急塚口駅徒歩約10分の2WAYアクセス可能、クロス張替・ハウスクリーニング済、周辺施設【万代塚口店・・・約430m ファミリーマート南塚口町店・・・約110m セブンイレブンJR塚口駅前店・・・約180m 尼崎南塚口郵便局・・・約180m 塚口さんさんタウン・・・約600m つかしん・・・約1130m 上坂部小学校・・・約50m】、浴室暖房乾燥機、駐車場有、シャンプードレッサー | |||||||||||||||||
|
ローンを組むにあたり、月々の返済額をシミュレーションします。
|
||||||||||||||||||
※掲載されている物件データが現状と異なる場合は現状を優先します
地図
|
|
位置情報に関するご注意:現在位置情報は精査中の為、正確ではない場合があります。あくまで参考程度の情報となります。
![]()
- 株式会社 丸文不動産
- TEL:06-6401-9234
- FAX:06-6401-9233
- 物件情報満載!!!
- 尼崎市の不動産は丸文不動産にお任せください!











