物件番号:Bk35883 物件詳細
    
    
    
    
    
    
    
    
    
    
    
    
    
    ★★★物件情報★★★
    駅名1:立花 停歩16分
    住所:尼崎市西難波町6丁目
    種目:新築戸建
    価格:3950万円
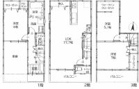
    間取:3LDK
    間取詳細:
    建物面積:101.6平米 (30.73坪)
    土地面積:55.48平米 (16.78坪)
    築年月:R07/07 ( 新築 )
    階:地上3階建
    構造:木造
    接道:南 6m(幅員) 公道 
    セットバック:
    用途地域:第一種中高層住居専用地域
    国土法届出:不要
    借地料:
    諸費用:
    取引態様:仲介
    確認日:2025/10/27
    次回確認予定日:2025/11/10
    特色:JR立花駅より徒歩約16分、南向き日当たり良好、駐車場有、LDKは約17.7帖有、ウォークインクローゼット有、バルコニー2カ所有、3LDKの間取り
    
    
    掲載されている物件データが現況と異なる場合は現況を優先します。
    
    ★★★会社情報★★★
    株式会社 丸文不動産
    
    上記リンクでうまく行かない場合は↓
    
    
    FAX番号:06-6401-9233
    
    
    
    R07年10月31日
    13時42分 更新
    次回更新予定日:令和07年11月1日